Construcción de un Centro Juvenil en Madrid
TECOPSA ha sido adjudicataria de las obras de Construcción de un Centro Juvenil en Madrid.
Con esta nueva adjudicación, TECOPSA consolida su presencia en la capital y continua con su compromiso de realizar obras que contribuyan con el bienestar de los ciudadanos y al interés general.
Este proyecto redactado por encargo de la Dirección General de Patrimonio, Área de Gobierno de Economía, Hacienda y Administración Pública del Excmo. Ayuntamiento de Madrid recoge la Construcción de nueva planta de un Centro Juvenil en el solar existente propiedad del Ayto. de Madrid.
Se trata de un solar de forma trapezoidal situado en el Distrito de Puente Vallecas, entre las calles Rio Esmeralda al Oeste, por cuyo nº 15 tiene el acceso principal a la parcela, C/ Rio Maracaibo al norte y C/Golfo Darien. Al sur limita con una parcela de uso deportivo.
La superficie de la parcela total es de 3.100m2, de los se autorizan 1696,78 m2 para la ocupación del Centro Juvenil
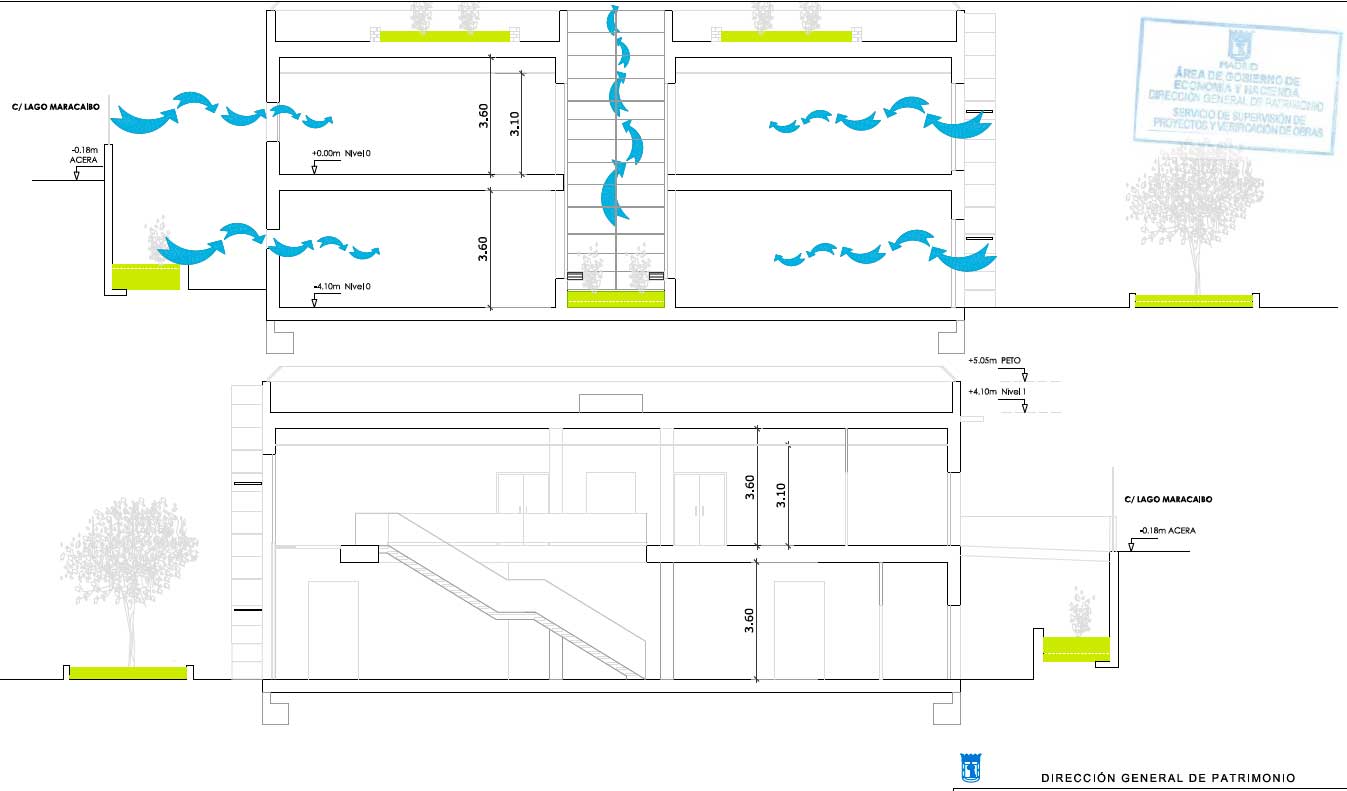
Se trata de una edificación rectangular de dimensiones 28,27*22,43m situada al norte de la parcela. Se organiza en dos niveles, aprovechando el desnivel del terreno y las calles circundantes de manera que se puede acceder al edificio por cualquiera de los dos niveles, ya que debido a la diferencia de cotas del viario circundante queda a nivel de c/ Lago Maracaibo por el Norte y al nivel de la C/ Rio Esmeralda por el sur.
En el interior de la edificación se crea un patio de dimensiones libres 3,00*8,62 m2 que facilita la ventilación cruzada de todas las estancias, tanto el eje transversal como longitudinal de la edificación lo que le convierte en una edificación Sostenible, contribuyendo en gran medida al cuidado del Medioambiente.


