Comienzan las obras de construcción del nuevo Instituto de Educación Secundaria Santa María, en Santa María del Camí (Palma de Mallorca).

Categorías: Sin categoría

La empresa TECOPSA (Tecnología de la construcción y obras públicas, s.a.) en UTE con HERMANOS PARROT, da comienzo a las obras de construcción del nuevo Instituto de 16 Unidades de Educación Secundaria IES Santa María, en el término municipal de Santa María del Cami (Mallorca)

La obra cuyo importe de adjudicación asciende a 4.827.914,34 euros (iva incluido) tendrá una duración de 14 meses y depende del Instituto Balear de Infraestructuras y Servicios Educativos (IBISEC) adscrito al Govern de les Illes Balears.

El Proyecto, redactado por los técnicos de la Conselleria d’Educació y Universitat de las Illes Balears se ubica en la una parcela dentro de suelo rústico en Área de transición que son zonas para acoger crecimientos urbanísticos. De hecho, proviene de la segregación de una parcela inicial donde ya se ha construido el centro de educación infantil y primaria Melcior Rosselló i Simonet, que hace deslinde en el lado norte. Dentro de los 9.684 m2 de la parcela 159-B está computada la superficie del aparcamiento que utilizan actualmente los trabajadores del centro escolar de infantil y primaria.

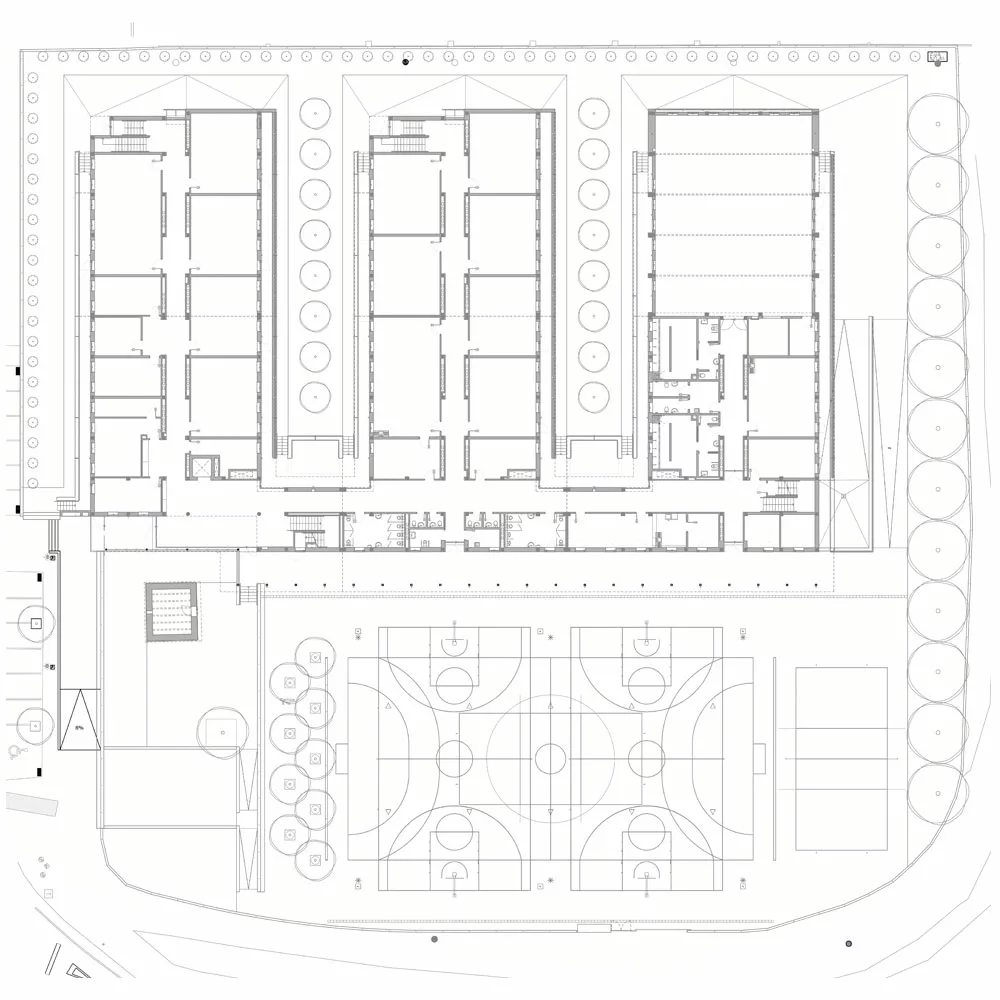
El centro se proyecta en un único edificio de planta sótano, baja y piso.

La tipología es de planta en forma de peine con un cuerpo longitudinal y tres transversales. El edificio queda emplazado en la parte posterior de la parcela. En el espacio libre entre la carretera y la fachada longitudinal se proyectan las pistas polideportivas y zonas de patio ajardinadas o de huerto integradas con la caseta de herramientas que se debe conservar.

En planta baja la relación entre el edificio y las zonas de patio se hace atravesando un porche longitudinal.

Entre los tres módulos transversal se conforman dos patios abiertos a levante, donde se localizan las fachadas de las aulas tipo de secundaria, orientadas a mediodía.

El gimnasio ocupa el último módulo, que es el más cercano a los carriles de conexión con la autopista.

El uso principal y único es el docente, y que corresponde a un centro de educación secundaria de cuatro líneas: 16 unidades de ESO y un aula UEECO. Estas unidades suponen una ocupación total del centro de 480 plazas escolares.

La adjudicación del contrato fue publicada en el perfil del contratante del IBISEC el 28 de Julio de 2017 y con esta construcción TECOPSA afianza su presencia en ámbito de la construcción, infraestructuras y servicios en las Islas Baleares, comenzando un proyecto de relevancia y que contribuye al beneficio social de los conciudadanos de Palma de Mallorca.